四川成都IM官方版 机械经过24年的发展已成为集粉流体混合机,搅拌机,反应釜,输送机,分散机,除尘器,计量包装机,研磨机,涂料建材化工成套设备等综合性机械制造企业如:干粉砂浆设备,腻子粉设备,储罐,玻化微珠设备,涂料设备,研磨设备,化工反应釜设备,树脂设备,等设备,IM官方版 还致力于:钢衬塑,钢衬PE,钢衬PO,钢衬四氟储罐反应釜和管道的非标化工防腐设备生产为一体的大型企业,2009年成立四川金梯IM官方版 四氟防腐科技有限公司将四氟防腐高端技术带进四川成都、重庆等大城市力图打造西部化工防腐强军。

不锈钢犁刀混合机

不锈钢犁刀混合机
 不锈钢犁刀混合机适用范围
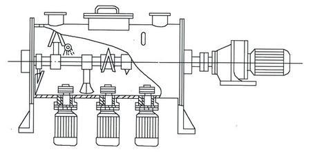
不锈钢犁刀混合机内部采用曲面式刀面的犁刀,在每次转动的作用下,物料被犁刀双向刀面分成两个方向的螺旋形物料流,并与附近的犁刀作用的物料相结合。反复的且多轨迹的作用效果保证了连续式的生产方式下的混合物料的均匀性。
 不锈钢犁刀混合机工作原理
犁刀混合机采用连续式生产混合物料必须依靠连续且按比例速度的给进原料,由此需结合自动化的连续给料系统配套使用。 混合机上进料口与出料口对称开设,进料、出料需由喂料器控制。

 不锈钢犁刀混合机介绍

四川成都IM官方版 机械不锈钢犁刀混合机

工作原理:

不锈钢犁刀混合机内部采用曲面式刀面的犁刀,在每次转动的作用下,物料被犁刀双向刀面分成两个方向的螺旋形物料流,并与附近的犁刀作用的物料相结合,反复的且多轨迹的作用效果保证了连续式的生产方式下的混合物料的均匀性。 
1、连续式生产混合物料必须依靠连续且按比例速度的给进原料,由此需结合自动化的连续给料系统配套使用。 
2、混合机上进料口与出料口对称开设,进料、出料需由喂料器控制。

应用范围:

犁刀混合机主要应用在干粉砂浆、干粉砂浆、干混砂浆、预拌砂浆、建筑砂浆、防水材料、涂料、电池 、电子元件、化工、医药食品、饲料、外加剂等行业的固-固(粉体对粉体或颗粒)、固-液(粉体喷洒液体)的高精度混合、加热混 合和湿造粒

结构形式:

犁刀混合机设备结构主要由传动部分、卧式筒体、犁刀组轴、飞刀组、出料阀、喷液装置等组成,卧式筒体内的犁刀随主轴旋转使物料沿筒臂作径向圆周湍动,同时径向物料沿线流经飞刀组,被高速旋转的飞刀抛散,不断更迭、复合使,物料在较短的时间达到混合均匀;传动部分包括带电机摆线针轮减速机、联轴器,主要把电机的运动变为需要的速度和扭矩传给复杂刀轴

技术参数:

型号-规格 (m³) WSD-0.5 WSD-1 WSD-2 WSD-3 WSD-4 WSD-6 WSD-8 WSD-10 WSD-12
装载系数 0.4~0.6
批次最大产量(㎏) 300 600 1200 1800 2400 3600 4800 6000 7200
混合时间  5~12
电机功率(KW) 5.5 11 18.5 22 30 37 45 55 55
主轴转速 r/min 62 50 42 33 33 22 22 16 16
外形尺寸mm 2680 3160 3865 4165 4678 5190 5360 5880 6140
1037 1330 1404 1504 1570 2105 2310 2310 2460
1150 1166 1637 1737 2040 2360 2540 2540 2690
设备重量 (Kg) 980 1550 2100 3050 3800 5500 7000 9250 10500

性能与技术特征:

·容积: 100-8000 升
·驱动:3 kW - 75 kW
·犁刀搅拌器可更换式
·产量可调节结构
·连续式给进出料式
·可配置重型结构

设备开口:
·开设标准法兰式接口
·人工快开加料口
·排气口
·筒身清理快开

材质标准:

·碳钢材质
·与物料接触为304不锈钢
·全部筒体为304不锈钢
·与物料接触为316L不锈钢
·全部筒体为316L不锈钢
·其它特种材料制作
·防腐材料内衬
·耐磨损材料涂层
·功能性材料覆层

 

功能配置:

·加热/冷却功能夹套
·匹配物料的密封装置
·加液/喷雾功能装置
·飞刀破碎功能装置
·除尘净化功能装置
·在线取样功能装置
·驱动控制形式匹配

 

 

订购需知:

容积:200-12000L;

材质:不锈钢或碳钢;

外形:圆形或U型;

加热方式:电加热、蒸汽加热;

喷雾装置:订购时需告知;

犁刀混合机 作为干粉砂浆设备中的常用设备之一,在高粘度物料混合时起到重要的作用。

 不锈钢犁刀混合机选型示例

       

 

留言询价:(如需即刻回复,请致电IM官方版 成都石板滩厂区:4006-269-369(免长途费)028-83968368)
姓名 
电话 
内容 
验证码  看不清楚,刷新验证码


返回首页 | 关于IM官方版  | 产品中心 | 联系我们 | 网站地图 | 法律声明
©1993-2012 huilicdc.com IM官方版网站登录入口-IM(中国) 版权所有     联系电话:4006-269-369(免长途费) 028-83968368 / 83053368 传真:028-83053228
客户分布:四川(成都 绵阳 德阳 广元  乐山 宜宾 泸州 内江 自贡 南充 达州 广安 攀枝花) 重 庆(万州)云南 贵州 (贵阳) 新疆 湖北 河北 山东 广东 (广州、深圳) 甘肃 (兰州)
合作伙伴:
蜀ICP备10013818号-3